Meadow 26


5    3    2    26sq

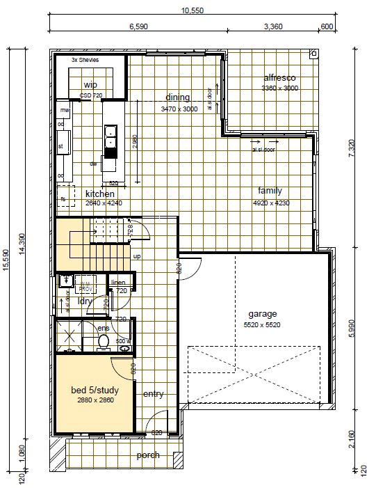
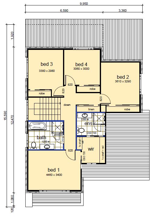
This 5 bedroom 26sq design is one to look at. Its suited for 13m wide x 23m deep block and features a double garage, spacious walk in pantry, alfresco, open living plan and generous sized bedrooms. The Meadow series provides great value and lifestyle at an affordable price.


Frontage 13.00


Ground Floor 98.02


First Floor 94.47


Garage 33.26


Alfresco 10.08


Porch 5.34


Total Area 241.17

This 5 bedroom 26sq design is one to look at. Its suited for 13m wide x 23m deep block and features a double garage, spacious walk in pantry, alfresco, open living plan and generous sized bedrooms. The Meadow series provides great value and lifestyle at an affordable price.


Frontage 13.00

Ground Floor 98.02

First Floor 94.47

Garage 33.26

Alfresco 10.08

Porch 5.34

Total Area 241.17

Package Inclusions


Note – All floor plans and 3d images are the copyright of Casaview Homes. Images used throughout are for illustration purposes only and may not represent actual standard inclusions. All designs are subject to relevant authority approvals.

  • We would like to thank Casaview for their professionalism, quality construction, beautiful designs, but above all, the no-stress approach to building our new home. We are sure that your dedication will result in many years of our happy domesticity.

    Michelle Dadich & James Tuckfield

    Proud owners of a Casaview Majestic House

  • I had a great experience. All staff members were knowledgeable, helpful and skilful. It gave me confidence during the building process and the end result was an excellently constructed house that I am proud to own. The custom design was built to perfection. I would love to build with Casaview again.

    Paul Salviana

    Custom Home Design

  • We just wanted to say how extremely thankful we are of your professionalism, diligence, support and efficiency with the construction of our house. We have been living in our beautifully built home for nearly a year now and we are extremely happy with the quality of the materials and workmanship.

    Nam & Tham Le

    Casaview Home Owner

    Have a question or want to chat? Leave a message and we'll be in touch shortly.

    Or simply give us a call on:
    (02) 8783 8800

    Sign up to our Newsletter for the latest offers, news and designs.